Wohnhaus in Zürich
Stadthaus mit 6 Wohneinheiten
Auftraggeberin: privat
Direktauftrag ab 2021
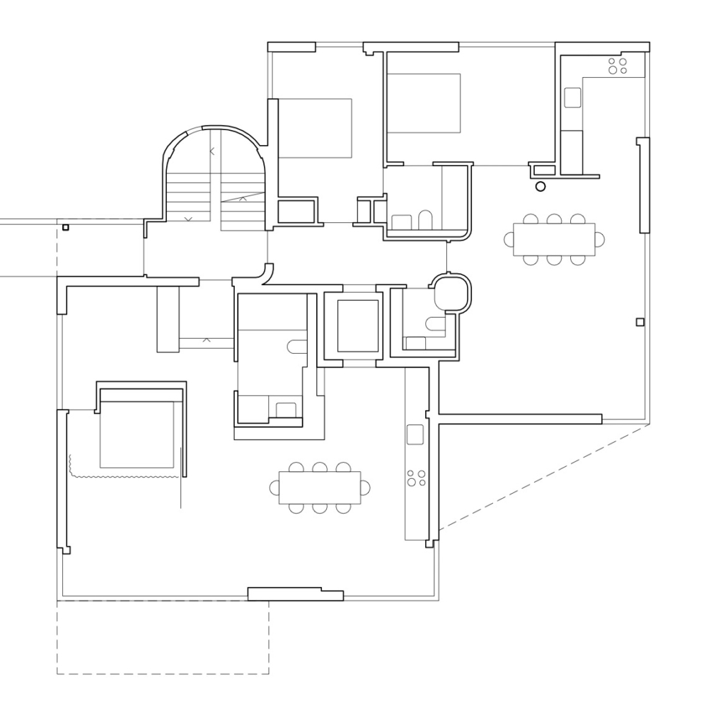
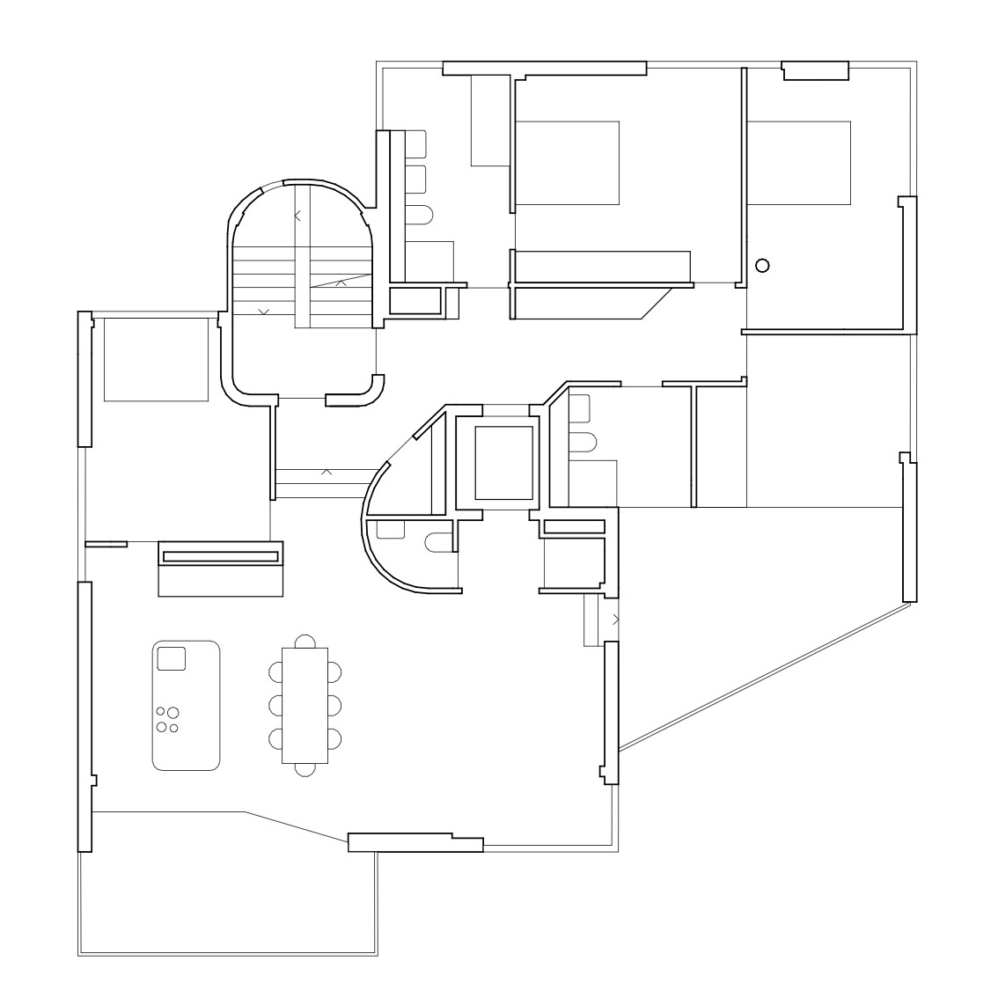
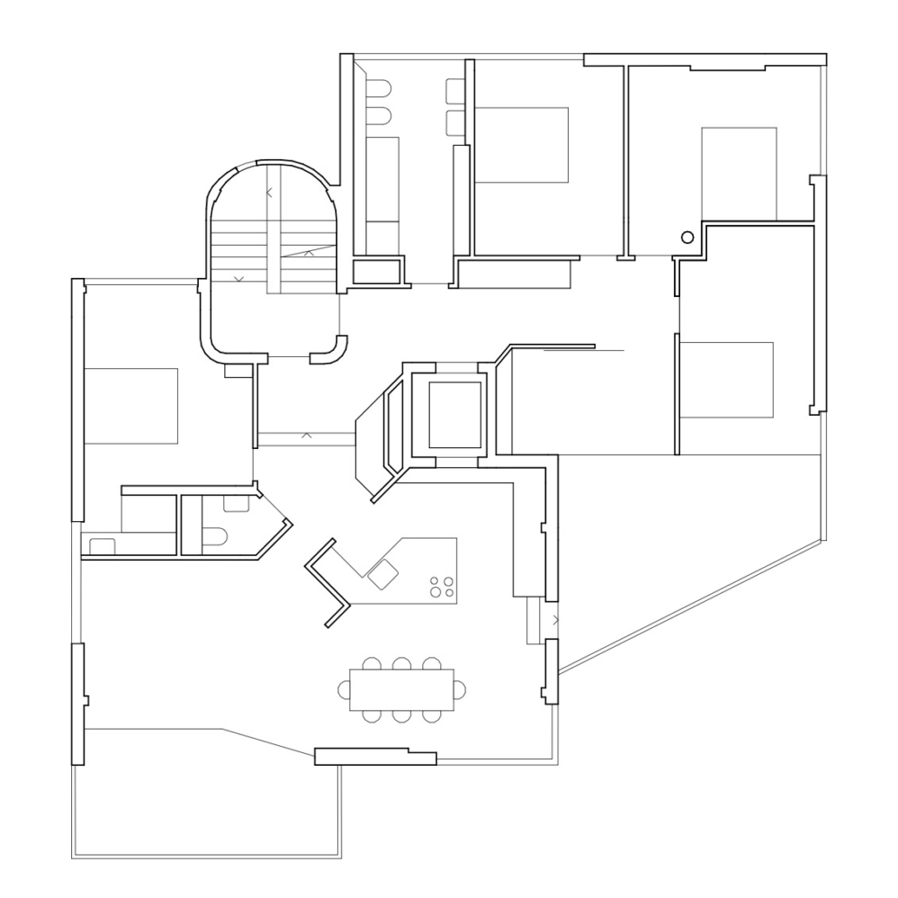
Der Entwurf geht von zwei Haushälften pro Geschoss aus, die sich um den vom Treppenhaus getrennten Liftkern herum zusammenlegen und wieder trennen lassen. Auf diese Weise wir das angestrebte Mehrgenerationen-Wohnen unterstützt.
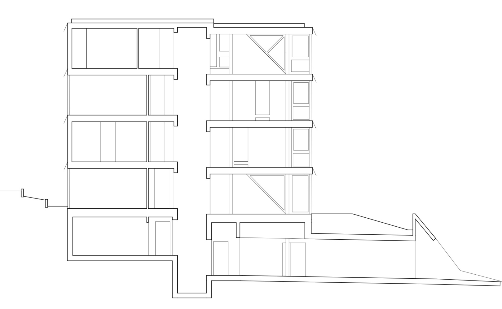
Das Haus soll im Ausdruck etwas „Leichtes“ erhalten.





















